Dřevostavba na klíč Napoli

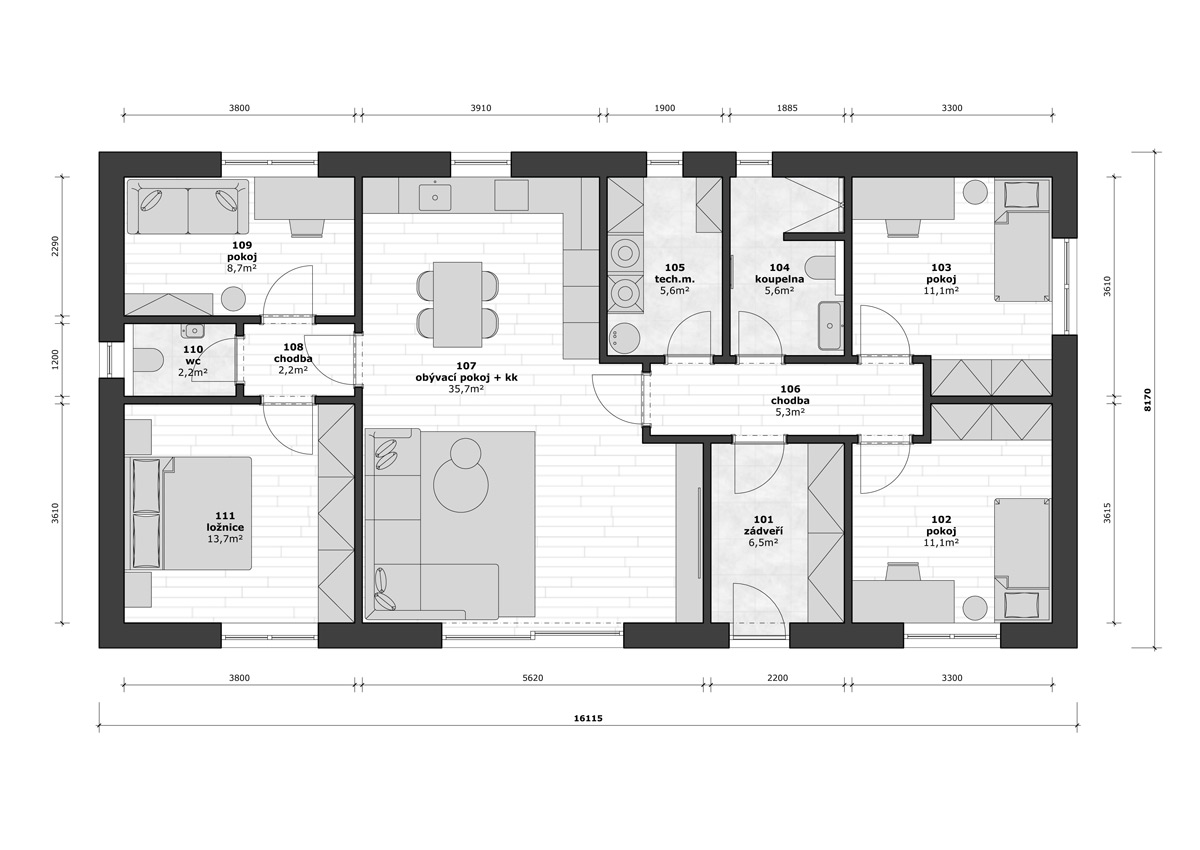
Dispozice: 5+kk
Zastavěná plocha: 131.7 m2
Užitná plocha : 107.7 m2

Ceník variant

Na klíč
4 643 547 Kč
K dokončení
3 989 124 Kč
Hrubá stavba
2 503 745 Kč
Novela

Uvedené ceny jsou vč. DPH 12%, která se vztahuje na domy určené k trvalému bydlení. Pokud máte dotazy ohledně projektu, samotné výstavby či financování, neváhejte nás kontaktovat.

Dům rádi upravíme

Velikost domu
Dispozice domu
Počet a velikost místností
Velikost a počet oken
Venkovní obklad a fasáda
Vytápění domu
Vybavení koupelny
Podlahy, dveře, zárubně
Více dle vašich požadavků

K domu lze doobjednat

Příprava na fotovoltaiku
Příprava na krbová kamna
Krbová kamna vč. komína (nerez)
Rekuperace vzduchu
Venkovní žaluzie či rolety
Kuchyňská linka na míru
Vestavěné skříně
Venkovní terasa a pergola
Schody k domu
Přístřešek nad vchod
Třívrstvá dřevěná podlaha
Více dle vašich požadavků

Specifikace variant

Přehled prací Hrubá stavba K dokončení Na klíč
Základová deska vč. hydroizolace
Hrubá stavba včetně opláštění
Konstrukce střechy vč. pokrývačských prací a krytiny
Výplně otvorů (okna a dveře)
Zateplení obvodové konstrukce a stropu vč. parozábrany
Fasáda zatažená do lepidla
Podbití střechy palubkami
Obvodová instalační předstěna
Projektová dokumentace pro stavební povolení
Izolace vč. zaklopení vnitřních příček
Vnitřní zaklopení obvodové konstrukce vč. stropu
Vylití podlah a instalace podlahového topení
Kompletní rozvody vody, odpadu a elektřiny
Tepelné čerpadlo vč. instalace
Vytmelení a vybroušení stěn a stropu
Kompletní výmalba interiéru
Obklad, dlažba a zařizovací předměty koupelna a WC
Obložkové zárubně a dveře
Parapety vnitřní a vnější
Podlahová krytina vč. podložky
Venkovní fasáda